堺筋山忠ビル 4階
長堀橋駅前の立地!男女トイレ別です!
セキュリティ面も充実です。
- 賃料/坪単価
- 30万8,000円 /
1.21万円
- 坪数/面積
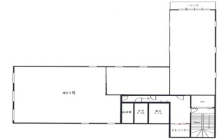
- 25.50坪 /
84.29㎡
- 所在階
- 4階
- 管理費・共益費
- 25,500円
- 敷金
- 1ヶ月
- 礼金
- 3.3ヶ月
-
情報の見方
担当者のコメント 三宮清孝

- 長堀橋駅前の立地!男女トイレ別です!
セキュリティ面も充実です。
ポイント・特徴
物件概要
【事務所】 物件番号:97302939 情報更新日:2026年03月05日 次回更新予定日:2026年03月13日所在地 大阪府大阪市中央区島之内1丁目22-23 交通 賃料/坪単価 30.8万円/1.21万円 坪数(面積) 25.50坪(84.29㎡) 管理費・共益費 25,500円 敷金/礼金/保証金 1ヶ月/3.3ヶ月/- 償却/敷引 -/- 更新料 - 権利金/雑費 -/- 造作譲渡金 - 駐車場/月額料金 近隣(1台)/33,000円 (税込) 保険加入/料金 有/- 保険名/保険期間 -/- 保証人代行義務 必加入 保証会社 その他 保証会社詳細 都度お問い合わせ下さい。 向き - 築年月(築年数) 1991年 1月 (築35年) 契約期間 1年 種別/構造 事務所/鉄骨鉄筋コンクリート 部屋/所在階/階建 -/4階/10階建 総戸数 - 現況/引渡時期 空家/即時 取引態様 一般媒介 用途地域 - 物件番号 97302939 取引条件の有効期限 2026年03月13日 設備条件 - 陽当り良好
- 事務所可
- 眺望良好
- 法人可
- カードキー
- IT向け
- 視認性良好
- 好立地
- 公営水道
- 公共下水
- エレベーター
- 電気有
- 外観タイル張り
- 温水洗浄便座
- 洗面台
- 男女トイレ別
- トイレ2ヶ所
- トイレ共同
- 光ファイバー
- 防犯カメラ
- 住戸内覧可能
備考 物件より徒歩圏内に当社営業店がございます。
事務所物件をはじめ、飲食・美容・物販などの様々な業種のニーズに応じて店舗物件をご紹介しております。
尚、弊社ではおとり広告は一切おこなっておりません。現地での内覧お待ち合わせ等も可能です。
お問い合わせ頂いた物件は勿論のこと、インターネットに掲載していないオススメ物件多数ございます。
ご相談も含めお気軽にお申し付け下さいませ。06-6578-2223物件より徒歩圏内に当社営業店がございます。内覧等・ご相談はお気軽にご連絡下さいませ。
現地でのお待ち合わせ希望などにもご対応させていただいております。
06-6578-2223取扱会社 - AFLOファミリーサロン
- 大阪府大阪市西区北堀江1丁目2-19 アステリオ北堀江ザ・メトロタワー 3F
- TEL:06-6578-2223
- 大阪府知事 (3) 第58557号
- 公益社団法人 全日本不動産協会
公益社団法人 不動産保証協会
公益社団法人 近畿圏不動産流通機構
公益社団法人 近畿地区不動産公正取引協議会
公益財団法人 日本賃貸住宅管理協会
※地図上に表示される物件の位置は付近住所に所在することを表すものであり、実際の物件所在地とは異なる場合がございます。
物件お問い合わせ
同じエリアの事務所
この物件を見た方へのお勧め物件
- アーバンネット本町ビル
- 30.5305万円 -/70.58㎡
- 大阪府大阪市中央区博労町2丁目
- 地下鉄中央線「堺筋本町」駅 徒歩5分
- 池田ビル3号館
- 31.5562万円 -/126.44㎡
- 大阪府大阪市中央区久太郎町2丁目
- 地下鉄御堂筋線「本町」駅 徒歩5分
- トーカンマンション長堀橋
- 31.6万円 -/99.15㎡
- 大阪府大阪市中央区南船場1丁目
- 地下鉄長堀鶴見緑地「長堀橋」駅 徒歩3分
- 難波日興ビル
- 29.92万円 -/56.19㎡
- 大阪府大阪市中央区西心斎橋2丁目
- 地下鉄御堂筋線「なんば」駅 徒歩3分
- オキツモビル大手前
- 31.9万円 -/76.73㎡
- 大阪府大阪市中央区大手通1丁目
- 地下鉄谷町線「天満橋」駅 徒歩7分
















