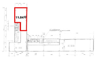
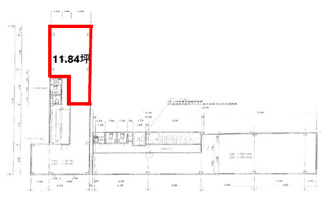
竹内エムアンドティビル 3階
男女別のトイレあり。
心斎橋・本町の人気オフィスエリア。
- 賃料/坪単価
- 16万5,000円 /
1.39万円
- 坪数/面積
- 11.84坪 /
39.15㎡
- 所在階
- 3階
- 管理費・共益費
- 22,000円
- 保証金
- 10万円
- 礼金
- 22万円
担当者のコメント 三宮清孝

- 男女別のトイレあり。
心斎橋・本町の人気オフィスエリア。
ポイント・特徴
物件概要
【店舗事務所】 物件番号:88429029 情報更新日:2025年11月11日 次回更新予定日:2025年11月21日| 所在地 | 大阪府大阪市中央区南船場3丁目9-2 | ||
|---|---|---|---|
| 交通 | |||
| 坪数(面積) | 11.84坪(39.15㎡) | ||
| 賃料/坪単価 | 16.5万円/1.39万円 | 管理費・共益費 | 22,000円 |
| 敷金/礼金/保証金 | 0ヶ月/22万円/10万円 | 償却/敷引 | -/- |
| 更新料 | - | 権利金/雑費 | -/- |
| 造作譲渡金 | - | 駐車場/月額料金 | 近隣(1台)/33,000円 (税込) |
| 保険加入/料金 | 有/- | 保険名/保険期間 | -/- |
| 保証人代行義務 | 必加入 | 保証会社 | その他 |
| 保証会社詳細 | 都度お問い合わせ下さい。 | 向き | - |
| 築年月(築年数) | 1964年 12月 (築60年) | 契約期間 | 2年 |
| 種別/構造 | 店舗事務所/鉄骨造 | 用途地域 | - |
| 部屋/所在階/階建 | -/3階/4階建 | 総戸数 | - |
| 現況/引渡時期 | 空家/即時 | 取引態様 | 一般媒介 |
| 物件番号 | 88429029 | 取引条件の有効期限 | 2025年11月21日 |
| 設備条件 |
|
||
| 備考 |
物件より徒歩圏内に当社営業店がございます。 事務所物件をはじめ、飲食・美容・物販などの様々な業種のニーズに応じて店舗物件をご紹介しております。 尚、弊社ではおとり広告は一切おこなっておりません。現地での内覧お待ち合わせ等も可能です。 お問い合わせ頂いた物件は勿論のこと、インターネットに掲載していないオススメ物件多数ございます。 ご相談も含めお気軽にお申し付け下さいませ。物件より徒歩圏内に当社営業店がございます。内覧等・ご相談はお気軽にご連絡下さいませ。 現地でのお待ち合わせ希望などにもご対応させていただいております。 06-6578-2223 |
||
| 取扱会社 |
|
||
※地図上に表示される物件の位置は付近住所に所在することを表すものであり、実際の物件所在地とは異なる場合がございます。














