建協ビル 5階
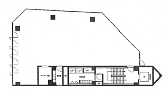
視野性の広い魅力の立地 ワンフロアに1戸のフロア
ガラス面が大きく開放的なオフィスです!
- 賃料/坪単価
- 38万3,865円 /
0.64万円
- 坪数/面積
- 60.01坪 /
198.40㎡
- 所在階
- 5階
- 管理費・共益費
- 211,242円
- 敷金
- 325万円
- 礼金
- 0ヶ月
-
情報の見方
担当者のコメント 角田慶希

- 「建協ビル」のここがイチオシ。新町北公園まで500mです。新しく開業したい方にオススメ、オフィスにもなる物件です。こちらは初期費用をカードでお支払いいただける物件なので、支払い手続きの手間が省けます。敷地内にはスペースがありませんが、近隣には駐車場があります。不便に感じるストレスも減少する好立地。視認性良好ですぐに見つけられやすいです。
ポイント・特徴
物件概要
【事務所】 物件番号:96693850 情報更新日:2025年11月07日 次回更新予定日:2025年11月21日所在地 大阪府大阪市西区阿波座1丁目 交通 賃料/坪単価 38.3865万円/0.64万円 坪数(面積) 60.01坪(198.40㎡) 管理費・共益費 211,242円 敷金/礼金/保証金 325万円/0ヶ月/- 償却/敷引 -/- 更新料 - 権利金/雑費 -/- 造作譲渡金 - 駐車場/月額料金 近隣/25,000円 保険加入/料金 有/- 保険名/保険期間 -/- 保証人代行義務 必加入 保証会社 その他 保証会社詳細 都度お問い合わせ下さいませ。 向き 南 築年月(築年数) 1973年 7月 (築52年) 契約期間 2年 種別/構造 事務所/鉄骨鉄筋コンクリート 部屋/所在階/階建 501/5階/10階建 総戸数 - 現況/引渡時期 空家/即時 取引態様 一般媒介 用途地域 - 物件番号 96693850 取引条件の有効期限 2025年11月21日 設備条件 - 陽当り良好
- 閑静な住宅地
- 事務所可
- 眺望良好
- IT向け
- 視認性良好
- 好立地
- 公営水道
- 公共下水
- エレベーター
- 電気有
- 個別空調
- 機械警備
- 外観タイル張り
- トイレ共同
- エアコン
- 光ファイバー
- 防犯カメラ
- 住戸内覧可能
備考 物件より徒歩圏内に当社営業店がございます。
事務所物件をはじめ、飲食・美容・物販などの様々な業種のニーズに応じて店舗物件をご紹介しております。
尚、弊社ではおとり広告は一切おこなっておりません。現地での内覧お待ち合わせ等も可能です。
お問い合わせ頂いた物件は勿論のこと、インターネットに掲載していないオススメ物件多数ございます。
ご相談も含めお気軽にお申し付け下さいませ。大阪府内全域、経験豊富なスタッフがご対応させていただきます。
尚、弊社ではおとり広告は一切おこなっておりません。
お問い合わせいただいた物件は勿論のこと、インターネットに掲載していないオススメ物件多数ございます。
当店では、スマホでカンタン・おトクにお支払いができるPayPayアプリや全物件ポイント・マイルが貯まるクレジットカード決済が可能です。
また、分割支払いも可能です。お気軽にお申し付け下さいませ。06-6536-5556取扱会社 - AFLO西大橋堀江店
- 大阪府大阪市西区北堀江2丁目1-15 気海ビル
- TEL:06-6536-5556
- 大阪府知事 (3) 第58557号
- 公益社団法人 全日本不動産協会
公益社団法人 不動産保証協会
公益社団法人 近畿圏不動産流通機構
公益社団法人 近畿地区不動産公正取引協議会
公益財団法人 日本賃貸住宅管理協会
※地図上に表示される物件の位置は付近住所に所在することを表すものであり、実際の物件所在地とは異なる場合がございます。
物件お問い合わせ
建協ビルの他の空室
同じエリアの事務所
この物件を見た方へのお勧め物件
- タツト建設ビル
- 37.14万円 -/150.48㎡
- 大阪府大阪市西区江戸堀1丁目
- 地下鉄四つ橋線「肥後橋」駅 徒歩5分
- 9999ビル
- 36.3万円 -/55.59㎡
- 大阪府大阪市西区江戸堀1丁目
- 地下鉄四つ橋線「肥後橋」駅 徒歩2分
- プレジール北堀江ビル
- 41.8万円 -/162.51㎡
- 大阪府大阪市西区北堀江1丁目
- 地下鉄長堀鶴見緑地「西大橋」駅 徒歩2分
- プレジール北堀江
- 41.8万円 -/162.51㎡
- 大阪府大阪市西区北堀江1丁目
- 地下鉄四つ橋線「四ツ橋」駅 徒歩5分
- LEREVE大阪九条
- 44万円 -/92.53㎡
- 大阪府大阪市西区九条1丁目
- 地下鉄中央線「九条」駅 徒歩1分













