道修町後藤ビル 6階
人気オフィス街!機械警備完備!
男女別のトイレございます!
- 賃料/坪単価
- 20万1,789円 /
1.04万円
- 坪数/面積
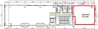
- 19.31坪 /
63.84㎡
- 所在階
- 6階
- 管理費・共益費
- -
- 敷金
- 9ヶ月
- 礼金
- 0ヶ月
-
情報の見方
担当者のコメント 三宮清孝

- 人気オフィス街!機械警備完備!
男女別のトイレございます!
ポイント・特徴
物件概要
【事務所】 物件番号:97502787 情報更新日:2026年02月11日 次回更新予定日:2026年02月13日所在地 大阪府大阪市中央区道修町2丁目2-6 交通 賃料/坪単価 20.1789万円/1.04万円 坪数(面積) 19.31坪(63.84㎡) 管理費・共益費 - 敷金/礼金/保証金 9ヶ月/0ヶ月/- 償却/敷引 -/- 更新料 - 権利金/雑費 -/- 造作譲渡金 - 駐車場/月額料金 近隣(1台)/33,000円 (税込) 保険加入/料金 有/- 保険名/保険期間 -/- 保証人代行義務 必加入 保証会社 その他 保証会社詳細 都度お問い合わせ下さい。 向き - 築年月(築年数) 1989年 2月 (築37年) 契約期間 2年 種別/構造 事務所/鉄骨鉄筋コンクリート 部屋/所在階/階建 -/6階/9階建 地下1階 総戸数 - 現況/引渡時期 空家/即時 取引態様 一般媒介 用途地域 - 物件番号 97502787 取引条件の有効期限 2026年02月13日 設備条件 - 陽当り良好
- 事務所可
- 眺望良好
- 法人可
- OAフロア
- IT向け
- 視認性良好
- 好立地
- 静かな環境
- 公営水道
- 公共下水
- エレベーター
- 電気有
- 個別空調
- 機械警備
- 外観タイル張り
- 温水洗浄便座
- 洗面台
- 男女トイレ別
- トイレ共同
- エアコン
- 光ファイバー
- 防犯カメラ
備考 物件より徒歩圏内に当社営業店がございます。
事務所物件をはじめ、飲食・美容・物販などの様々な業種のニーズに応じて店舗物件をご紹介しております。
尚、弊社ではおとり広告は一切おこなっておりません。現地での内覧お待ち合わせ等も可能です。
お問い合わせ頂いた物件は勿論のこと、インターネットに掲載していないオススメ物件多数ございます。
ご相談も含めお気軽にお申し付け下さいませ。06-6578-2223物件より徒歩圏内に当社営業店がございます。内覧等・ご相談はお気軽にご連絡下さいませ。
現地でのお待ち合わせ希望などにもご対応させていただいております。
06-6578-2223取扱会社 - AFLOファミリーサロン
- 大阪府大阪市西区北堀江1丁目2-19 アステリオ北堀江ザ・メトロタワー 3F
- TEL:06-6578-2223
- 大阪府知事 (3) 第58557号
- 公益社団法人 全日本不動産協会
公益社団法人 不動産保証協会
公益社団法人 近畿圏不動産流通機構
公益社団法人 近畿地区不動産公正取引協議会
公益財団法人 日本賃貸住宅管理協会
※地図上に表示される物件の位置は付近住所に所在することを表すものであり、実際の物件所在地とは異なる場合がございます。
物件お問い合わせ
道修町後藤ビルの他の空室
同じエリアの事務所
この物件を見た方へのお勧め物件
- 美貴ビル
- 19.8万円 -/94.54㎡
- 大阪府大阪市中央区南船場2丁目
- 地下鉄堺筋線「長堀橋」駅 徒歩1分
- 心斎橋イーストビル
- 20.7515万円 -/56.69㎡
- 大阪府大阪市中央区南船場2丁目
- 地下鉄御堂筋線「心斎橋」駅 徒歩3分
- 隅谷ビル
- 20.768万円 -/78.01㎡
- 大阪府大阪市中央区南本町1丁目
- 地下鉄中央線「堺筋本町」駅 徒歩3分
- ACN堺筋本町ビル
- 20.9万円 -/38.68㎡
- 大阪府大阪市中央区南本町1丁目
- 地下鉄中央線「堺筋本町」駅 徒歩1分
- 北三ビル
- 21.0375万円 -/74.38㎡
- 大阪府大阪市中央区北浜2丁目
- 地下鉄堺筋線「北浜」駅 徒歩3分
















