東邦第2ビル
賃料
49.0534
万円
種別
事務所
面積
134.03㎡
坪数
40.54坪
住所
大阪府大阪市中央区南船場2丁目
交通
心斎橋駅
徒歩6分
担当者のコメント
三宮清孝
2沿線利用可能な好立地テナントビル!最上階の角部屋です。
光インターネット・24時間セキュリティ・敷地内駐車場あり
外観
東邦第2ビル
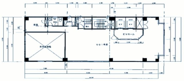
間取り
東邦第2ビル
エントランス
東邦第2ビル
ロビー
東邦第2ビル
その他共用部分
東邦第2ビル
エントランス
東邦第2ビル
その他共用部分
東邦第2ビル
駐車場
東邦第2ビル
外観
東邦第2ビル